Великолепная квартира с видом на площадь Испании
							
						
					
				
				
					Великолепная квартира с видом на площадь Испании
1,000,000.00 EUR
- 
						АвторVitamin
- Тип объявления Продажа
- Тип рынка Вторичный
- Времени осталось 4 месяца и 15 дней -
- Количество 1
- Цена 1,000,000.00 EUR
Описание
Потрясающая панорама, последний этаж
	Расположение: Eixample, Barcelona
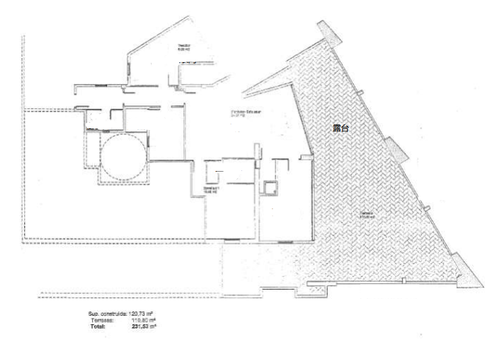
Площадь: 120 м2 квартира + 110 м2 терраса
Цена: 1,000,000€
Спальни: 3
Ванные комнаты: 2
	Квартира расположена на площади Испании, на верхнем (последнем) этаже,имеет террасу 110 м2, с которой открывается великолепный вид на гору Монжуик и знаменитое здание "Арена" (торговый комплекс). Следует отметить, что фактическая площадь квартиры 120 м2, в регистре указано 78 м2 (не обновляется), что является фактической площадью отображения плана.
	Планировка квартиры включает в себя открытую кухню, просторную гостиную, 3 спальни и 2 ванные комнаты.
	Квартира расположена на площади Испании, где находятся много известных музеев, такие как Национальный дворец, Музей современного искусства, Национальный музей изобразительных искусств, в летний период по вечерам можно насладиться уникальным волшебным фонтаном. Здесь расположены несколько линий метро и железнодорожный вокзал. Также на на последнем этаже "Арены" находятся много элегантных ресторанов, бассейн на крыше и бар, а также с смотровой площадки можно наслаждаться великолепным видом на площадь Испании.
	Квартира расположена недалеко от парков на Монжуике и напротив парка Хуан Миро. До площади Каталуния 7 минут на автобусе.
О РАЙОНЕ
	Квартира, расположена в самом центре района Эшампле, недалеко от площади Испании. Placa Espanya — это красивая Площадь Испании в Барселоне, считается одной из самых ярких достопримечательностей мегаполиса. Являясь живописнейшим местом, она примечательна удивительными зелеными террасами, много есть здесь разных скульптур и выставочных павильонов. Расположенная у подножия Монжуик, она ежегодно привлекает к себе множество туристов со всего земного шара. И это не случайно, ведь площадь является центральной площадью мегаполиса и одной из самых крупнейших по величине в Испании.
	Площадь имеет хорошую связь с центральными районами мегаполиса. Туда можно попасть за 5-10 минут, или добраться пешком в течение получаса. Недалеко и вокзал Sants Estacio – в нескольких минутах ходьбы. Он является центром для отправки по популярным различным местам, а также в аэропорт – от него отправляются прямые поезда.
ДОСТОПРИМЕЧАТЕЛЬНОСТИ РАЙОНА
- Международная школа 8.3 km
- Университет 6.5 km
- Площадь Каталонии 4 km
- Площадь Испании 700 m
- Национальный дворец 800 m
- Метро (9 минут) 700 m
- Университет (10 минут) 3.2 km
- Триумфальная арка(15 минут) 5.9 km
- Другие места: Camp Nou, Poble Español, Fuente Mágica
Дополнительно
- 
									Страна
									Испания
- 
									Местоположение
									Коста дель Маресме
- 
									Район
									Барселона
- 
									Тип
									Жилая
- 
									Вид
									Квартира
- 
									Общая площадь
									120
- 
									Жилая площадь
									90
- 
									Количество комнат
									3
- 
									Количество этажей
									-
- 
									Этаж
									-
- 
									Тип рынка
									Вторичный
Other adverts from Vitamin
- 
	
		
			
			
				Продажа
			
		
        
	
	
		.thumb.jpg.eee8d58545c22a4809f465ad4128fb13.jpg)  Продаётся земельный участок в Badalona, провинция БарселонаАвтор Vitamin 1 год и 6 месяцев 927,000.00 EUR
- 
	
		
			
			
				Продажа
			
		
        
	
	
		  
- 
	
		
			
			
				Продажа
			
		
        
	
	
		  
- 
	
		
			
			
				Продажа
			
		
        
	
	
		  Sitges. Квартира расположена на второй линии пляжа Сант-Себастьян, с террасой и полуотремонтированнымАвтор Vitamin 1 год и 3 месяца 265,000.00 EUR
- 
	
		
			
			
				Продажа
			
		
        
	
	
		  Sitges. Светлый цокольный этаж в районе пляжа Сант-Себастьян, с дополнительным парковочным местомАвтор Vitamin 1 год и 3 месяца 395,000.00 EUR
- 
	
		
			
			
				Продажа
			
		
        
	
	
		  Sitges. Красивая полностью отремонтированная студия в центре городаАвтор Vitamin 3 месяца и 5 дней 197,000.00 EUR
- 
	
		
			
			
				Продажа
			
		
        
	
	
		  Sitges. Отремонтированная квартира с террасой в центре городаАвтор Vitamin 3 месяца и 5 дней 279,000.00 EUR
- 
	
		
			
			
				Продажа
			
		
        
	
	
		  Sitges. Хорошая квартира в жилом районе с видом на мореАвтор Vitamin 3 месяца и 5 дней 265,000.00 EUR
- 
	
		
			
			
				Продажа
			
		
        
	
	
		  Vilanova i la Geltru. Просторный и светлый двухквартирный дом с 4 спальнями и крытым бассейномАвтор Vitamin 3 месяца и 5 дней 480,000.00 EUR
- 
	
		
			
			
				Продажа
			
		
        
	
	
		  Vilanova i la Geltru. Просторная угловая квартира с 4 спальнями и лифтом на главной улице РамблаАвтор Vitamin 3 месяца и 5 дней 275,000.00 EUR
- 
	
		
			
			
				Продажа
			
		
        
	
	
		  Sitges. Просторная квартира в центре города с 4 спальнями, лифтом и парковкойАвтор Vitamin 3 месяца и 5 дней 470,000.00 EUR
- 
	
		
			
			
				Продажа
			
		
        
	
	
		  Sant Pere de Ribes. Красивый и просторный дуплекс с лифтом и террасой в районе РокетесАвтор Vitamin 3 месяца и 5 дней 275,000.00 EUR
- 
	
		
			
			
				Продажа
			
		
        
	
	
		  Sitges. Хорошая квартира в центральном районе, полностью отремонтированная, с террасой и лифтомАвтор Vitamin 3 месяца и 5 дней 425,000.00 EUR
- 
	
		
			
			
				Продажа
			
		
        
	
	
		  Olivellа. Красивый недавно отремонтированный дом с панорамным видом на горыАвтор Vitamin 2 месяца и 29 дней 306,000.00 EUR
- 
	
		
			
			
				Продажа
			
		
        
	
	
		  Olivellа. Красивый минималистский дом в стиле Ибицы с туристической лицензиейАвтор Vitamin 2 месяца и 29 дней 690,000.00 EUR
Other adverts from barselona
- 
	
		
			
			
				Продажа
			
		
        
	
	
		.thumb.jpg.eee8d58545c22a4809f465ad4128fb13.jpg)  Продаётся земельный участок в Badalona, провинция БарселонаАвтор Vitamin 1 год и 6 месяцев 927,000.00 EUR
- 
	
		
			
			
				Продажа
			
		
        
	
	
		  
- 
	
		
			
			
				Продажа
			
		
        
	
	
		  
- 
	
		
			
			
				Продажа
			
		
        
	
	
		  
- 
	
		
			
			
				Продажа
			
		
        
	
	
		  Квартира с туристической лицензией в Оспиталет-де-ЛьобрегатАвтор Vitamin 1 год и 3 месяца 503,000.00 EUR
- 
	
		
			
			
				Продажа
			
		
        
	
	
		  Великолепная квартира недалеко от университета БарселоныАвтор Vitamin 1 год и 3 месяца 525,000.00 EUR
- 
	
		
			
			
				Продажа
			
		
        
	
	
		  
- 
	
		
			
			
				Продажа
			
		
        
	
	
		  
- 
	
		
			
			
				Продажа
			
		
        
	
	
		  
- 
	
		
			
			
				Продажа
			
		
        
	
	
		  
- 
	
		
			
			
				Продажа
			
		
        
	
	
		  
- 
	
		
			
			
				Продажа
			
		
        
	
	
		  
- 
	
		
			
			
				Продажа
			
		
        
	
	
		  
- 
	
		
			
			
				Продажа
			
		
        
	
	
		  Фантастический очень солнечный дом с туристической лицензией и с возможностью пристройки второго этажаАвтор Vitamin 10 месяцев и 15 дней 430,000.00 EUR
- 
	
		
			
			
				Продажа
			
		
        
	
	
		  Отличная квартира в самом центре Барселоны – улица Портал Дель АнхельАвтор Vitamin 10 месяцев и 15 дней 775,000.00 EUR

 
                         
                                                 
			
				

Recommended Questions
Нет вопросов для отображения