Перейти к содержанию

Рекомендуемые сообщения

Опубликовано

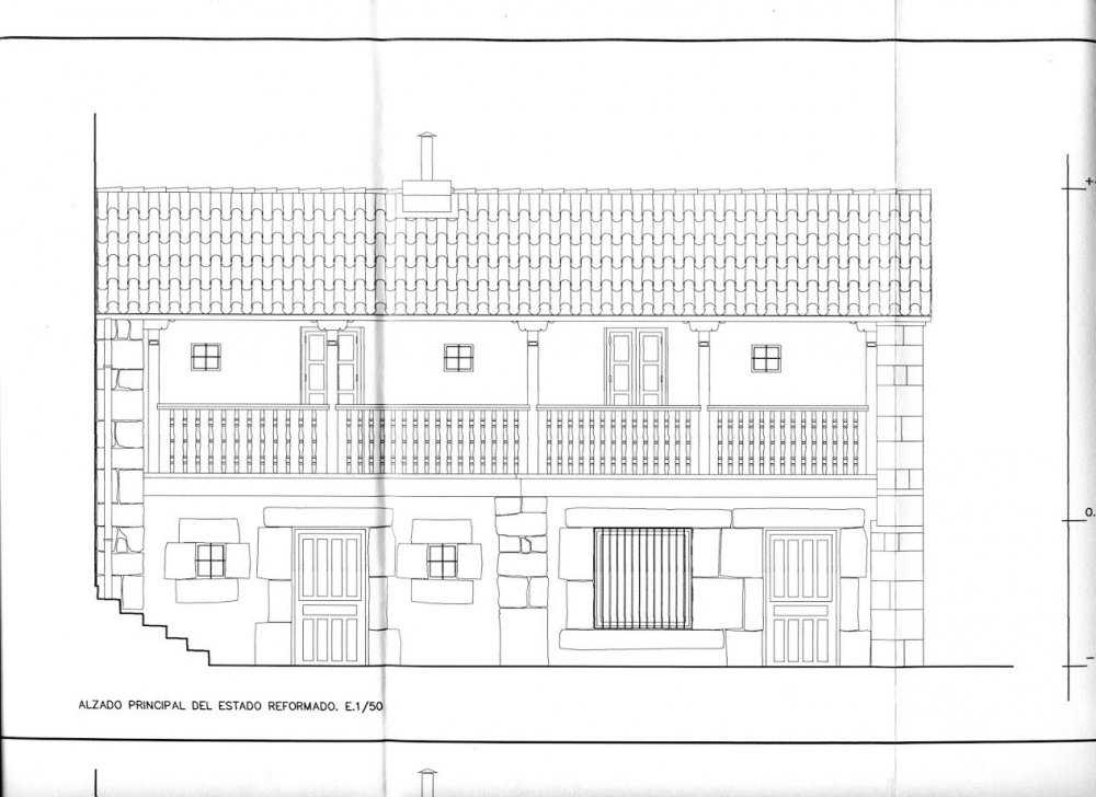
Продается особняк, построенный в 1880 году в кантабрийском, или горном, стиле.

Это двухэтажный дом с мансардой.

Участок, на котором построено здание, площадью 360 м2.

Дом площадью 135,50 м2 на этаж, общей площадью 267,75 м2.

Ориентация южная.0.jpg

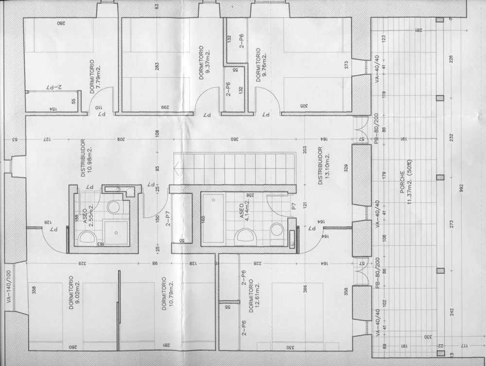
Дом необходимо реформировать, есть проект, согласно которому на первом этаже будет гостиная, кухня, ванная комната, кладовая и веранда 22 м2; на втором этаже было бы 6 спален, две ванные комнаты и солярий 20 м2, в проект не входит реформа чердака для жилого использования, площадь которого 70м2.

Дом расположен в 5 км от большого поселка со всеми услугами. Там, в том числе есть супермаркеты, медицинский центр, банки, рестораны и проч.

Дом находится в центре деревни, есть электричество, вода и газ, в деревне есть небольшой бар-магазин.

Вы можете спуститься к реке Cares-Deva, где вы сможете заняться рафтингом, рыбалкой и купанием.

Привилегированное расположение между морем и горами, на въезде в Пикус де-Европа, в 10 минутах езды от Коломбрес и 15 от прекрасного пляжа Ла-Франка.

Цена: 90 000 евро.

Ref PGAAD16-4cantabria

1.jpg 2.jpg

3.jpg 4.jpg 5.jpg

6.jpg 7.jpg 8.jpg

 

Ещё загородные дома на продажу в Кантабрия:

Для публикации сообщений создайте учётную запись или авторизуйтесь

Вы должны быть пользователем, чтобы оставить комментарий

Создать аккаунт

Зарегистрируйте новый аккаунт в нашем сообществе. Это очень просто!

Регистрация нового пользователя

Войти

Уже есть аккаунт? Войти в систему.

Войти



×
×
  • Создать...